Unifamiliar aislada – Montcada i Reixac 246.10 m2

Venta
450.000€
207.10 m2 0 Habitaciones 2 Lavabos Garaje: No Ascensor: No

Resumen

Referencia RANP0625
Precio de venta: 450000€
Tipo: Unifamiliar aislada
Provincia: Barcelona
Localidad: Montcada i Reixac
Ubicación: CATALUNYA DE
Zona:

Descripción

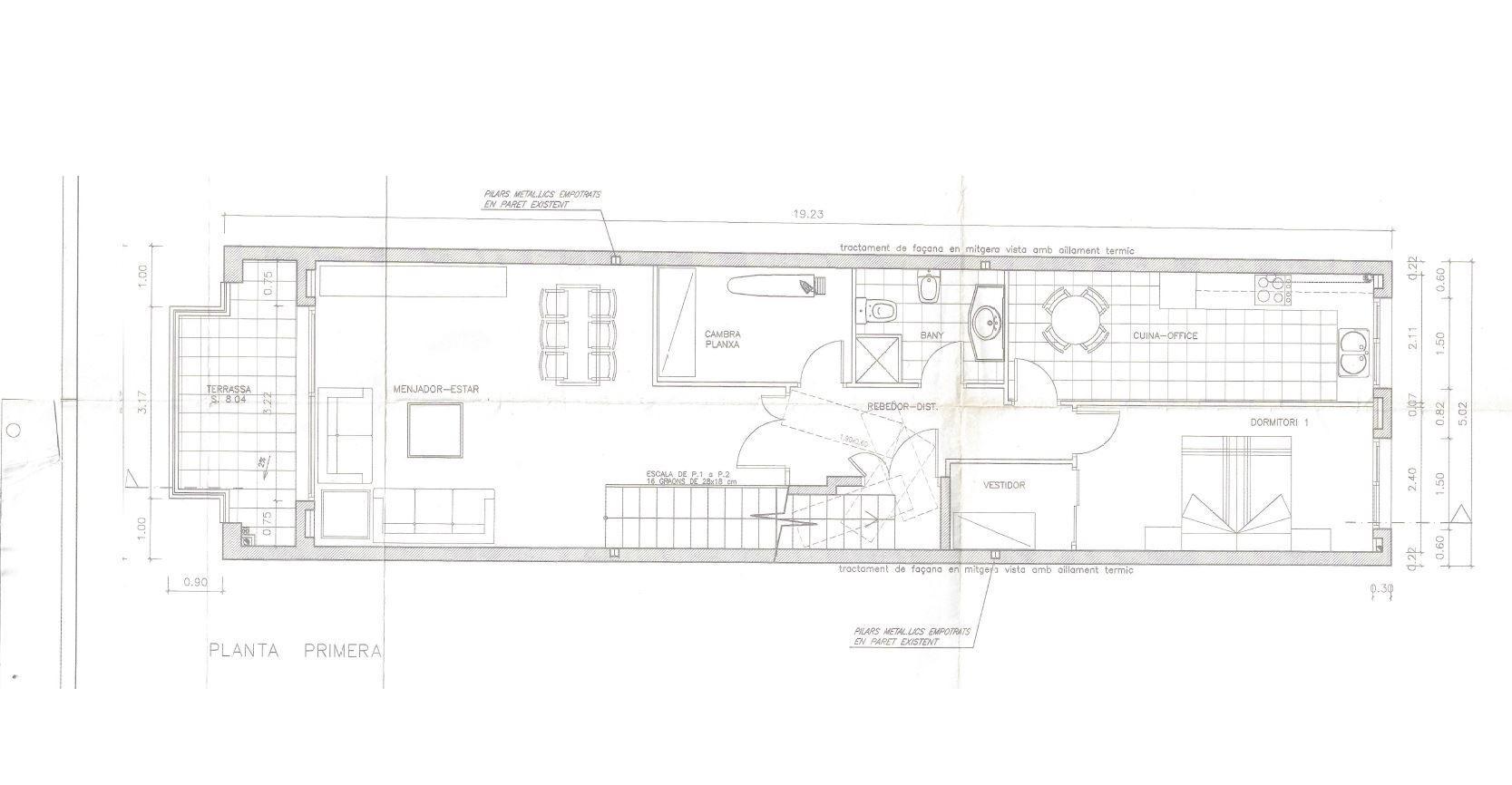
Ubicada en la Avinguda de Catalunya, esta espaciosa vivienda unifamiliar entre medianeras combina amplitud, confort y una excelente ubicación. Construida sobre una parcela de 98 m , cuenta con tres plantas perfectamente distribuidas, con una superficie total construida de 246 m y una superficie útil de 206 m , incluyendo el garaje. En la planta baja se encuentra un amplio garaje, con capacidad para varios vehículos y un aseo auxiliar que aporta comodidad adicional. Desde el propio garaje se accede directamente a las escaleras interiores que comunican con las plantas superiores, ofreciendo practicidad y privacidad. La primera planta destaca por su amplitud y luminosidad. Alberga un gran salón-comedor con acceso directo a un balcón amplio de 8m2, y soleado, una cocina totalmente equipada, dos habitaciones dobles y un baño completo. En la segunda planta se encuentra la zona más íntima de la vivienda, compuesta por dos acogedoras habitaciones, un estudio adicional, un baño completo con ducha y el acceso a una gran terraza de 31,72m2, íntima con espacio más que suficiente para disfrutar del sol, crear una zona chill-out o instalar una mesa para comidas al aire libre (ideal porque las fincas colindantes están a una altura inferior, por lo que está resguardada de miradas indiscretas). La casa se encuentra en muy buen estado, construida con materiales de calidad, presenta una distribución funcional y goza de una excelente orientación Este, que garantiza luz natural desde las primeras horas del día. Situada en una de las zonas más tranquilas y bien comunica

Características

Superfície útil: 207.10 m²
Superfície construida: 246.10 m²

Datos generales


Datos Generales

Año de contrucción : 2001
Estado de conservación : Buena

Dormitorios

Dormitorios individuales : 3

Baños / Aseos

Número de baños : 2

Calefacción

Calefacción
Calefacción bomba de frío/calor
Calefacción eléctrica

Cerca de


Colegios

Información de la certificación energética


Categoría del consumo energético : E
Categoría de las emisiones : E
Emisiones CO2 (kg CO2/m2 año) : 45

Situación en el Mapa

Contacto

Su nombre*

Su e-mail*

Su teléfono*

Referencia propiedad*

Su mensaje

Acepto y he leído el aviso legal









Tambien te puede interesar

Uso de cookies

Este sitio web utiliza cookies para que usted tenga la mejor experiencia de usuario. Si continúa navegando está dando su consentimiento para la aceptación de las mencionadas cookies y la aceptación de nuestra política de cookies, pinche el enlace para mayor información. ACEPTAR